22-101. These regulations require off-street parking proportional to the need created by each use in order to ensure functionally adequate, aesthetically pleasing, and secure off-street parking facilities. Regulations and standards are intended to ensure usefulness of parking and loading facilities, to protect public safety, and where appropriate, to limit potential adverse impacts on adjacent property.
22-201. Applicability. Off-street parking facilities, as
required in this Article, shall be provided for any new building and for any
new use established, additions to existing use, or any change in manner of use
which results in increased capacity.
Additional parking need only be provided for the addition, enlargement,
or change and not the entire building or use.
No off-street parking facilities shall be required in the C-4 Central
Business District.
22-202. Maintenance. All existing and required parking facilities shall be maintained and shall not be reduced so long as the use requiring such parking remains.
22-203. Utilization. Required off-street parking facilities
shall be located on the same site as the use for which such facilities are
required, except as authorized by Section 22-6.
Such facilities shall be used exclusively for temporary parking of motor
vehicles and shall not be utilized for sale or storage of merchandise, or for
storage or repair of vehicles, equipment or trailers.
22-204. Residential districts. Parking
facilities which make provisions for more than three (3) vehicles shall not be
located within the required front yard for the district.
22-205. Computation. Where the determination of number of
off-street parking spaces required results in a fractional part of a space, a
fraction of one-half or more shall be counted as a full space and a fraction of
less than one-half shall be disregarded.
Where requirements are established on the basis of seats or person capacity, the provisions of the
applicable building code applicable at the time shall be used to calculate
maximum design capacity.
22-206. Compact cars. In every off-street parking facility of ten (10) or more spaces, a maximum of ten (10) percent of the required number of spaces may be designed for compact cars. For the purpose of this section, a compact car is a motor vehicle with an overall length which does not exceed fourteen (14) feet.
22-207. Zoning
Administrator. The Zoning
Administrator is authorized to approve minor variations from the size and
number of parking spaces otherwise required under this Article when, in his or
her discretion, such variation does not violate the purpose of these
regulations and does not harm public health, safety or welfare. The Zoning Administrator is specifically
authorized to allow some required parking spaces on commercial properties to be
used, for a fixed number of days, for temporary sales purposes, including but
not limited to lawn and garden and other seasonal materials.
22-301. Area size. Each required parking space shall consist of a rectangular area of not less than nine (9) feet in width, by nineteen (19) feet in length. Each space for compact cars, when allowed by this Article shall consist of a rectangular area of not less than eight (8) feet in width, by seventeen (17) feet in length. All required spaces shall be clearly marked and defined.
22-302. Access. Except in R-1 and R-2 districts, each required off-street parking space shall open directly upon an aisle or driveway of such width and design as to provide safe and efficient means of vehicular access to such parking space. Streets and alleys shall be used only for access to and from parking facilities and shall not be used for maneuvering of vehicles. Any alley used for access to other than a single-family residence shall be paved according to applicable specifications.
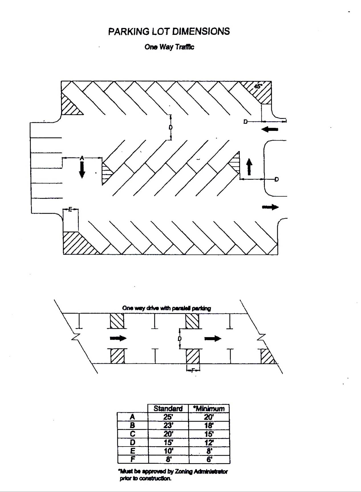
22-303. Design standards. Minimum parking facility design standards shall comply with Section 22-7.
22-304. Driveways. Driveway location and spacing shall comply with the Corridor Management Policy Manual of the Kansas Department of Transportation. Site plans for commercial properties shall include a traffic impact analysis and an internal traffic circulation plan making full use of shared entrances.
22-305. Surfacing. All off-street parking facilities, loading areas, vehicular storage areas and drives and access to and from such areas shall be surfaced and maintained with four (4) inches of asphalt, or concrete to create a permanent all-weather, dust-free surface. Such paving must be completed prior to occupancy of the facility that the paving is intended to serve, unless temporary occupancy approval is received from the site plan review committee.
Gravel areas in existence
prior to the effective date of these regulations may be maintained with six (6)
inches of gravel, including base, as an alternative to these surfacing
requirements.
The site plan review committee may, upon receiving a specific written request from an owner of a property, authorize temporary occupancy for a time period not to exceed twelve (12) months prior to accomplishing the required paving or a portion thereof.
In reviewing a request for temporary occupancy prior to accomplishing required paving, the site plan review committee shall consider the following criteria:
a. Season of the year.
b. Affect on the adjoining property.
c. Surfacing of the connecting street.
d. Surfacing of existing adjoining parking facilities.
Should the owner receive
approval of the site plan review committee for a delay in paving, the owner
shall, prior to occupancy, present written verification to the Zoning
Administrator that guarantees all paving shall be complete prior to the
deadline given by the site plan review committee.
22-306. Lighting. Any
lighting provided to illuminate any parking facility shall be designed and
installed in such a manner as to reflect away from any residential use upon
adjoining properties.
22-307. Drainage. All parking facilities shall be graded and/or
designed with storm drainage facilities so as to channel surface water away
from adjoining properties and to an approved storm drainage system.
22-308. Parking facilities in
residential districts. Any parking facilities for eight (8)
or more vehicles (1) when in residential zoning districts and (2) which are
adjacent to a residential or mobile home-zoned district, shall have a screened
fence or wall to prevent the passage of vehicular lights and to prevent the
blowing of debris. Such fence or wall
shall be at least six (6) feet in height and have a visual density of not less
than seventy percent (70%).
Plans showing the layout, landscaping and design of all off-street parking, loading, or other vehicular use areas shall be submitted to, and approved by the Zoning Administrator prior to beginning construction. A permit shall be obtained prior to starting work on any parking area designed to accommodate four or more vehicles.
22-501. Off-street parking
spaces shall be provided as follows:
|
|
Residential Uses: |
Minimum Off-Street Parking Spaces: |
|
1. |
Single-family |
2 spaces per unit for residences on lots 50’ or less in width
and 3 spaces for residences on lots greater than 50’ in width. |
|
|
Two-family |
2 spaces per unit for residences on lots 50’ or less in width
and 3 spaces for residences on lots greater than 50’ in width. |
|
|
Multiple-family: Efficiency One or more bedroom |
1 space per unit. 2 spaces per unit. |
|
2. |
Dormitories |
1 space for each 2 persons based on maximum design capacity. |
|
3. |
Lodging houses, rental sleeping rooms in a dwelling unit |
1 space for each 2 tenants |
|
4. |
Nursing home, rest home, similar facilities |
1 space for each 3 beds based on maximum design. |
|
5. |
Manufactured home park or subdivision |
2 spaces per unit. |
|
6. |
Dwellings in C-4 District |
1 space per unit. |
|
7. |
Bed and breakfast inns |
1 space per rental unit. |
|
|
Nonresidential Uses: |
Minimum Off-Street Parking Spaces: |
|
1. |
Automobile, truck, recreation vehicle, mobile home sales and
rental lots |
1 space per 3,000 square feet of display area, plus 1 space per
employee. |
|
2. |
Automobile or truck wash |
3 holding spaces for each stall, plus 1 drying space per stall. |
|
3. |
Banks, business or professional offices |
1 space for each 200 square feet up to 1,000 square feet, plus 1
space for each 400 square feet thereafter. |
|
4. |
Bowling alleys |
5 spaces for each lane or alley. |
|
5. |
Churches and similar places of worship |
1 space for each 4 seats in the sanctuary. |
|
6. |
Community college or high school |
1 space for each 3 employees, plus 1 additional space for each
15 students enrolled. |
|
7. |
Day care or nursery schools |
1 space for each 15 students enrolled. |
|
8. |
Elementary, junior high schools, and equivalent |
2 spaces per classroom. |
|
9. |
Fraternal associations |
1 space for each 4 persons based on maximum design capacity. |
|
10. |
Funeral homes and mortuaries |
1 space for each 4 seats based on maximum design capacity plus 1
space per employee. |
|
11. |
Furniture and appliance stores |
1 space per 400 square feet of floor area |
|
12. |
Hospitals |
1 space for each 3 beds, plus 1 space for each 2 employees on a
maximum shift. |
|
13. |
Laundromats |
1 space for every 2 washing machines. |
|
14. |
Manufacturing, processing, assembly plants |
1 space for each 1.5 workers on a maximum shift. |
|
15. |
Medical and dental clinics |
5 spaces for each doctor or dentist. |
|
16. |
Motel and hotels |
1.2 spaces per rental unit plus 1 space for each 2 employees per
working shift. |
|
17. |
Motor vehicle repair or body shop |
1 space for each 2 employees, plus 1 space per service bay. |
|
18. |
Restaurants with fixed seating, provided that drive-up
restaurants shall provide a minimum of 10 spaces |
3 spaces for each 5 seats, based on maximum designed occupancy. |
|
19. |
Retail stores and shops |
1 space per 175 square feet of retail area. |
|
20. |
Service stations |
1 space for each employee, plus 2 spaces per service bay. |
|
21. |
Taverns, private clubs |
1 space for each 3 persons based on maximum design capacity. |
|
22. |
Theaters, auditoriums, assembly places with fixed seating |
1 space for each 3.5 seats. |
|
23. |
Theaters, auditoriums, assembly places without fixed seating |
1 space for each 4 persons based on maximum design capacity. |
|
24. |
Trade, commercial schools |
1 space for each 3 students and employees. |
|
25. |
Warehouse, storage, wholesale establishments |
1 space for each 2 employees. |
|
26. |
All other uses not specified above |
1 space per each 200 square feet of gross floor area. |
22-601. Districts
permitted. In order to provide
off-street parking areas, the Board of Zoning Appeals may, after public notice
and hearing, grant as an exception, the establishment of parking areas in any
zoning district under the following provisions:
a. Location. Parking provided under this section must
be within three hundred (300) feet (along lines of public access) from the
boundary of the use for which the parking is provided. Access to such parking facilities from the
use must be adequately lighted to provide for safety of the public.
b. Use. The parking area shall be used for
passenger vehicles only, and in no case shall it be used for sales, repair
work, storage, dismantling or servicing of vehicles, equipment, materials or
supplies. Only such signs as are
necessary for the proper operation of the parking lot shall be permitted.
c. Improvements. Parking areas and driveways on private
property providing ingress and egress to parking areas shall be surfaced with
concrete or asphalt to the specifications of the applicable City or County
Engineer and shall be maintained in good condition and free of all weeds, dust,
trash, and other debris.
d. Guards. Parking areas shall have adequate guards to prevent extension or the overhanging of vehicles beyond property lines or parking spaces; and parking areas shall have adequate markings for channelization and movement of vehicles.
e. Screening. A fence (such as solid-wall masonry, wood, louvered wood, metal or other similar materials) at least six (6) feet high and having a density of not less than seventy (70) percent per square feet, shall be erected along any property line adjacent to or adjoining any dwelling district to eliminate the passage of light from vehicles and to prevent the blowing of debris. Whenever a fence shall be required along a front yard, such fence shall not be higher than thirty-six (36) inches and such fence shall be located within one foot of the front yard setback line. Fences along said yards shall not extend nearer to the street than the front yard setback line.
22-602. Alternate surface. The
Board of Zoning Appeals, after due public notice and hearing, may grant a
variance to the surfacing materials required in this article.
22-603. Exception revocable. The Zoning Administrator shall be responsible for the enforcement of the conditions and requirements made by the Board of Zoning Appeals in the approval of any off-street parking exceptions. The Zoning Administrator, upon discovery of any violation of this regulation or the conditions and requirements established by the Board, shall notify the Board through its secretary as to such violations. The Board of Zoning Appeals is hereby authorized to revoke the exception after public hearing for any of the following reasons:
a. Abandonment of the area for use for parking purposes for six (6) continuous months (180 calendar days).
b. Failure to comply with the requirements
contained in this section, or other requirements imposed by the Board.




SECTION
22-8 LOADING AND UNLOADING
SPACE REQUIREMENTS
22-801. On-premise loading and unloading spaces shall be provided off-street and in the side or rear for such uses involving receipt or distribution of materials or merchandise by motor vehicle or rail. All loading and unloading operations shall be located to avoid undue interference with traffic and public use of streets, alleys and walkways. Such space shall include a minimum of twelve (12) feet by twenty-five (25) feet for loading and unloading operations and shall have a minimum height clearance of fourteen (14) feet. The number of spaces shall be provided as follows:
Number of Spaces Gross Floor
Area in Square Feet
1 3,000 to 20,000
2 20,001 to 40,000
3 40,001 to 60,000
4 60,001 to 80,000
5 80,001 to 100,000
6 100,001 to 150,000
One additional space shall be provided for each fifty thousand (50,000) square feet above one hundred fifty thousand (150,000) square feet.
SECTION
22-9 DISTRICTS REQUIRING
LOADING AND UNLOADING SPACE
22-901. Loading and unloading spaces shall be provided in the following zoning districts:
a. “C-1” Office and Service Business.
b. “C-2” Restricted Commercial.
c. “C-3” General Commercial.
d. “I-1” Light Industrial.
e. “I-2” Heavy Industrial.