ARTICLE 3. MANUFACTURING HOUSING
Manufactured housing terms shall have the following definitions:
(a) Manufactured Housing. Any factory-assembled structure, or structures, equipped with the necessary utility service connections and made so as to be readily movable or transportable as a unit or units on its own running gear and designed to be used as a year-round single-family residential dwelling. The term manufactured home includes single-wide, double wide and multi-wide units. The term does not include modular homes.
(b) Manufactured Housing-Certified. A manufactured housing unit, which has been constructed in conformance with the Federal Manufactured Homes Construction and Safety Standards Act, generally known as the HUD Code established pursua11t to 42 U.S.G., Section 5403.
(c) Manufactured Home, Residential Design. A manufactured home on a permanent foundation which has (a) minimum dimensions of twenty-two (22) body feet in width, (b) a pitched roof, and (c) siding and roofing materials which are customarily used on site-built homes.
(d) Manufactured Home Park. Any area, parcel, or tract of ground equipped as required for support of manufactured homes and used or intended to be used by five (5) or more occupied manufactured homes. Such manufactured home park shall be under one ownership and control, but under no circumstances shall the manufactured home spaces be sold or offered for sale individually. The term does not include a sales area on which unoccupied manufactured homes, whether new or used, are parked for the purposes of storage, inspection, or sale. A manufactured home may, however, remain on a space for purposes of sale by the resident owner of the manufacture home park owner.
(Ord. 518; Code 2018)
Residential design manufactured homes may be located throughout the community in any area where conventional single-family housing would be permitted, subject to the following requirements:
(a) The roof shall be double-pitched and shall have a minimum vertical rise of two and one-half (2.50) inches for each twelve (12) inches of horizontal run. The roof shall have a minimum eave protection and roof overhang of eight (8) inches.
(b) Roof covering shall be residential in appearance, including but not limited to, approved wood, asphalt composition or fiberglass shingles, but excluding corrugated aluminum, corrugated fiberglass, or metal roofing materials not approved by the City.
(c) Exterior siding shall be of a non-reflective material such as wood, composition, simulated wood, clapboards, conventional vinyl or metal siding, brick, stucco, or similar materials, but excluding smooth, ribbed or corrugated metal or plastic panels. Siding material shall extend below the top of the exterior of the retaining or foundation wall or the joint between siding and enclosure wall shall be flashed.
(d) The manufactured home shall be installed in accordance with the recommended installation procedures of the manufacturer. A continuous permanent concrete foundation or masonry curtain wall, unpierced except for required ventilation and access, which may include basements and garages, shall be installed under the perimeter of the home.
(e) At each exit door there shall be a landing that is a minimum of three (3) by three (3) feet.
(f) All manufactured home running gear, tongues, axles, and wheels must be removed from the site at the time of installation of the home on the lot.
(g) The finished floor of the residential-design manufactured home shall be a maximum of eighteen (18) inches above the exterior finished grade of the lot on which it is located.
(Ord. 518; Code 2018)
Manufactured housing units other than residential design manufactured housing units are permitted for use on individually owned lots in specifically defined areas of the City of Marquette, provided the following rules and regulation shall apply:
(a) All manufactured housing units hereinafter moved into the City of Marquette shall be HUD certified units and shall bear a construction compliance certification plate. Existing non-certified manufactured housing units currently inside the City limits shall not be moved to another location inside the City.
(b) Manufactured housing units shall not have less than twelve (12) feet of body width and sixty (60) feet of length.
(c) Manufactured homes shall be mounted on a foundation of permanent design.
(d) All maintenance openings in the foundation below such manufactured home shall be skirted, blocked, or otherwise screened using solid materials which will assure positive closure.
(e) Each manufactured home shall be an independent dwelling unit, connected to all available utilities.
(f) Each manufactured home shall be provided with anchors and tie-downs of adequate capacity to provide stability against high winds and adverse weather conditions which shall be installed in accordance with applicable recommendations and regulations.
(g) Each independent manufactured home shall be sited in such a manner as to preserve the visual character of the neighborhood, which shall include provisions for landscaping and other site improvements as well as off street parking.
(h) Prior to siting, each manufactured home shall be inspected by the City to assure compliance with applicable regulations. No manufactured home shall be sited until the owner has received notice of approval from the City.
(Ord. 518; Code 2018)
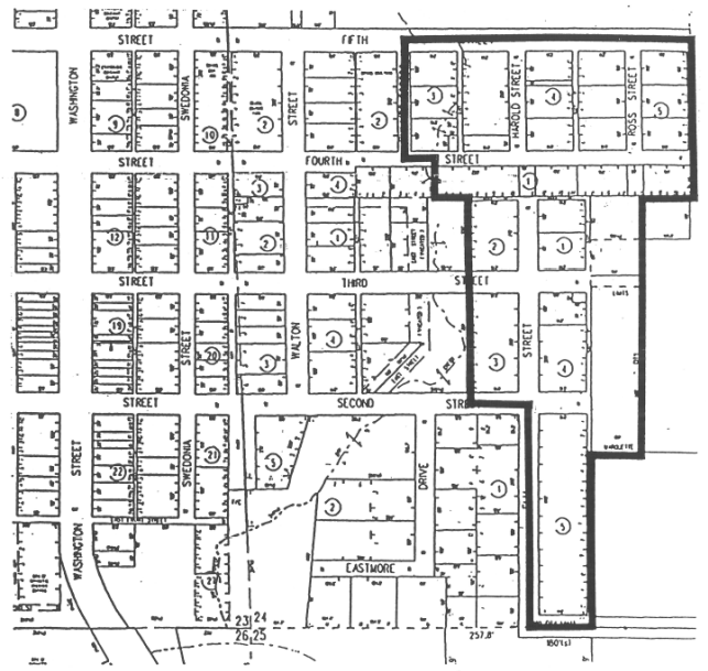
Manufactured housing units other than residential design manufactured housing units are permitted on individually owned lots in the area outlined on the map below:

(Ord. 518; Code 2018)
No manufactured housing unit placed on an individual lot shall be closer than eight (8) feet from any side lot line; twenty-five (25) feet from any front lot line; and twenty-five (25) feet from any rear lot line. On a comer lot, the unit shall observe a twenty-five (25) foot setback from any lot line adjacent to a street.
(Ord. 518; Code 2018)
No manufactured housing unit shall be located on any individual lot having less than fifty (50) feet of width.
(Ord. 518; Code 2018)
Manufactured housing units may be located in manufactured home parks subject to the following requirements:
(a) No manufactured home park shall be located or operated in the City of Marquette unless such park shall have received from the City a permit for such operation.
(b) Manufactured home parks shall be restricted to the following uses:
(1) Independent manufactured homes located on a well-drained slab.
(2) Parks and Playgrounds.
(3) Manufactured housing service buildings, such as coin-operated washers and dryers, for exclusive use of residents of the manufactured park.
(4) Office for manager of the manufactured park.
(5) Storage building for vehicles used to tow manufactured housing units.
(6) Storage building for blocks, skirts, pipe, and other material and equipment required to set up a manufactured house.
(7) Accessory uses and buildings, including swimming pools, bath houses, patios, etc., for exclusive use of manufactured housing residents.
(c) Manufactured housing parks shall be subject to the following conditions and requirements:
(1) A tract to be used for a manufactured housing park shall be large enough to accommodate five (5) or more manufactured units.
(2) Each manufactured housing park space shall be not less than thirty five (35) feet wide.
(3) Manufactured housing parks shall have a minimum density of eight (8) manufactured units per gross acre, and each space shall have not less than three thousand (3,000) square feet.
(4) The manufactured housing park shall be located on a well-drained site properly graded to insure rapid drainage.
(5) Manufactured housing parks shall provide screening when they abut residential property.
(6) Each manufactured housing park having more than ten (l0) lots for rent shall reserve an area for child recreation according to the following schedule.
NUMBER OF MANUFACTURED HOUSING UNITS MINIMUM AREA OF PLAYGROUND
0 – 10 none required
10 – 20 1,500 square feet
21 – 25 2,500 square feet
25 and over 100 square feet per lot
(7) The recreation area shall be located so as to be free from hazards and provided with play equipment.
(8) All new manufactured housing parks shall provide a storm shelter for the occupants.
(9) The manufactured housing shelter shall be approved, after the submission of plans by the applicant, by the City Council. The shelter shall be constructed below ground level as a concrete structure and provided with heavy metal doors. It shall be located so as to be accessible to the park residents in a central place with access to the shelter clearly marked.
(10) Manufactured housing units shall be located so that there is at least a twenty (20) foot clearance between manufactured houses; provided, however, with respect to manufactured houses parked end-to-end, the clearance shall not be less than ten (10) feet. No manufactured housing unit shall be located less than ten (10) feet from the front driveway.
(11) No manufactured housing unit shall be located less than twenty-five (25) feet from any property line of the manufactured housing park of from any community building within the park, including any washroom, toilet, laundry facilities, or office.
(12) All manufactured housing spaces shall abut on an internal driveway that is not less than twenty-four (24) feet in width; provided, however, that no on-street parking is permitted. If parallel parking is permitted on one side of the street, the width shall be increased to twenty-eight (28) feet, and if parallel parking is permitted on both sides of the street, the width shall be increased to thirty-six (36) feet. Such driveways shall have unobstructed access to a public street or highway and shall have, as a minimum, a gravel surface or be paved and well maintained and lighted.
(13) Manufactured housing parks containing more than twenty (20) units shall provide each lot with a concrete pad for parking two (2) vehicles separate from the road. The minimum pad size shall be fourteen (14) feet wide and sixteen (16) feet in depth. In parks containing less than twenty (20) units, the parking space may be constructed of crushed rock finished to a depth of eight (8) inches.
(14) All roadways and walks within the manufactured housing park shall be hard surfaced or gravel surfaced and provided with night lighting using lamps spaced at intervals of not more than one hundred (100) feet.
(15) All electrical distribution systems and telephone service systems to each manufactured housing, space, except outlets and risers, shall be underground. Each manufactured housing space shall be provided with a 110-volt and 220-volt service with a minimum 100-ampere individual service outlet.
(16) Whenever master television antenna systems are to be installed, the complete plans and specifications for the system must be submitted for approval. Distribution to individual manufactured housing spaces shall be underground and shall terminate adjacent to the electrical outlet.
(17) Laundry facilities for the exclusive use of the manufactured housing occupants may be provided in a service building.
(18) An adequate supply of pure water for drinking and domestic purposes shall be supplied by pipes to all buildings and manufactured housing spaces within the park. Each manufactured housing space shall be provided with a cold water tap at least four (4) inches above the ground. An adequate supply of hot water shall be provided at all times in the service buildings for all washing and laundry facilities.
(19) All manufactured housing units in the manufactured home park shall be connected to an approve public water supply and an approved sanitary sewer system with at least a four (4) inch sewer connection to each manufactured housing unit. The sewer connection shall be provided with suitable fittings so that a water tight connection can be mad between the manufactured housing drain and the sewer connection. Such individual unit connections shall be so constructed that they can be closed when lot linked to a manufactured housing unit and shall be trapped in such a manner as to maintain them in an odor-free condition.
(20) Each manufactured housing unit shall be secured by anchoring the superstructure against uplift, sliding, rotation, and overturning.
(21) Outdoor laundry drying space of adequate area and suitable location shall be provided and indicated upon required plan.
(22) The owner or operator shall include with the required plan the method of refuse collection and the location of refuse containers. Refuse and garbage handling methods shall meet the following minimum requirements:
(A) Storage collection and disposal of refuse in a park shall be so conducted as to create no health hazards, rodent harborage, insect breeding areas, accidents, fire hazards or air pollution.
(B) All refuse shall be stored in fly-tight, water-tight, rodent-proof containers. Containers shall be provided in sufficient number and capacity to properly store all refuse.
(C) Refuse racks shall be provided for all refuse containers. Such racks shall be designed as to prevent the containers from being tipped, to minimize spillage and container deterioration and to facilitate cleaning around them.
(D) Refuse and garbage shall be removed from the park at least once each week. All refuse shall be collected and transported in covered vehicles or covered containers.
(E) The park owner shall insure that containers at all stands are emptied regularly and maintained in a useable sanitary condition.
(23) If only independent manufactured housing spaces are to be provided, no service building will be required; however, when such service building is required, it shall comply with the following regulations:
(A) Be located twenty (20) feet or more from any manufactured housing unit.
(B) Be adequately lighted.
(C) Have the interior finished with moisture-resistant material to permit frequent washing and cleaning.
(D) Provide at least one (1) lavatory, water closet, and shower for each sex; one (1) laundry tray, one (1) floor drain, and hot and cold water.
(E) Have adequate heating facilities for the building and equipment which will furnish an ample supply of heated water during time of peak demands.
(F) Have all rooms well ventilated with all openings effectively screened.
(24) When liquefied petroleum gas is used in a mobile home park, containers for such gas shall not hold more than twenty-five (25) gallons water capacity, shall be the liquefied petroleum gas containers approved by the United States Commerce Commission for its intended purposes, and shall be attached to the mobile home in a manner approved by the Liquefied Petroleum Gas Association.
(25) A solid or semi-solid fence or wall, minimum 6 feet, maximum 8 feet high, shall be provided between the manufactured home park and any adjoining property or property immediately across the alley which is utilized for residential purposes other than for manufactured housing. In lieu of said fence or wall a landscape buffer may be provided not less than 15 feet in width, and said landscape buffer shall be planted with coniferous and deciduous plant material so as to provide proper screening for the park. When the landscape buffer is use in lieu of the fence or wall, the landscape buffer shall not be included as any part of a required rear yard for a manufactured home space. The fence, wall, or landscape buffer shall be properly maintained by the Owner.
(26) The Owner or operator shall include with the required plan a budget for financing the proposed improvements.
(d) The application procedure for a manufactured housing park permit shall be as outlined below:
(1) The applicant for a manufactured housing park permit shall prepare or cause to be prepared a development plan and shall present ten (10) copies of the plan for review by the City Council. The development plan shall show topography and the location and size of:
(A) Manufactured housing sites.
(B) Service buildings
(C) Off-street parking areas
(D) Electrical outlets
(E) Sewer outlets
(F) Water outlets
(G) Water lines
(H) Sewer lines
(I) Recreational areas
(J) Landscaped areas and walls or fences
(K) Roadways
(L) Sidewalks
(2) When final approvals have been obtained, the City Clerk shall issue a permit to operate the manufactured housing park.
(3) Upon the issuance of the permit for a manufactured home park the City shall have the authority to have said manufactured home inspected by the proper inspecting officer of the City, and if it shall be found that the holder of said permit has made any false or misleading statements in his application or has placed or caused to be place more manufactured homes in said manufactured home park than provided for and set forth in said application for permit, or that said holder of said permit has violated or caused to be violated any provision of this article, the City Governing Body shall have the power to revoke said permit.
(4) If the City shall determine upon proper inspection by the inspecting officer of the City, that the sanitary condition of the manufactured home park shall have become so unsanitary as to endanger health or welfare of occupants of said manufactured home park or the surrounding community, or that said sanitary facilities have become inadequate to properly protect the occupants of said manufactured park, the City Governing Body shall have the power to require the holder of said manufactured home park permit, within ten (10) days, to set said manufactured home park in proper sanitary condition. If, upon notice from the City to the holder of the permit as aforesaid, the owner or manager of said manufactured home park shall fail or refuse to place said park or court in sanitary condition, the City Governing Body shall have the right to revoke said permit.
(5) Whenever a manufactured home park ceases to be used for such purposes for a period of one (1) year, the City Council may revoke the permit for operation.
(6) After the effective date of Ordinance No. 518, no new manufactured housing park may be operated except in accordance with this article under permit from the City Clerk.
(Ord. 518; Code 2018)